Parkers Gård

Stenungsund - Parkers gård 12 - Stenungsund

STENUNGSUND - Parkers Gård

OBS! Friköpt parhus med lagfart till bostadsrättspris! Med centralt och fint gavelläge i detta populära friköpta område erbjuder vi idag detta 2-rumsparhus i mycket gott skick med naturen inpå knuten. Nära till ICA-affär och skola. Här finns cykel- och promenadvägar till "torget" med affärer, restauranger och småbåtshamn. Ett tillfälle!

Sammanfattning

Typ:
Villa
Boarea:
67 kvm
Tomtarea:
193 kvm
Rum:
2 varav 1 sovrum
Pris
2 500 000 kr
Byggår:
1988

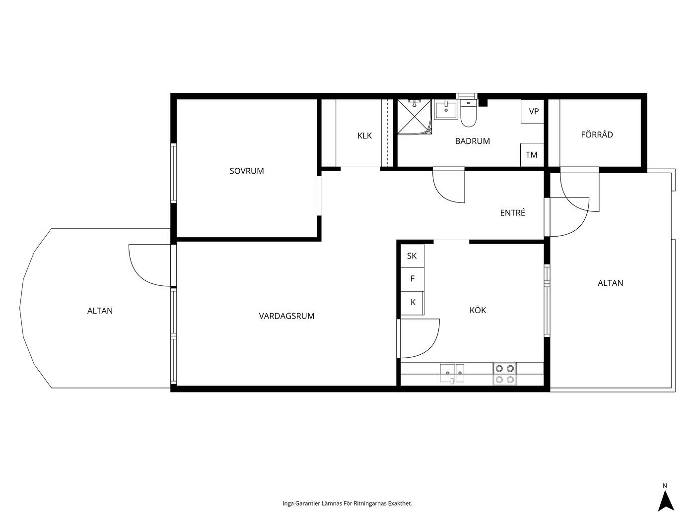
planlösning

Välkommen in i entréhallen varifrån du har köket med matplats på vänster hand och det helkaklade badrummet på höger hand. Rakt fram till vänster ligger vardagsrummet med utgång till altan och till höger finns det stora sovrummet. Klädkammare.
Till parhuset ingår ett garage genom avgiften till samfällighetsföreningen.

 

Fakta

Fastighetsbeteckning
STENUNG 2:294
Tomtarea
193 Kvm enligt fastighetsregistret
Boarea
67 Kvm enligt fastighetsregistret
Fasad
Trä
Tak
Betongpannor
Plåtarbete
Plåtisol
Stomme
Trä
Bjälklag
Betong
Grundläggning
Betongplatta
Vatten och avlopp
Kommunalt vatten året om/Kommunalt avlopp.
Fönster
3-glas
Uppvärmning
Frånluftsvärmepump
Ventilation
Frånluftsvärmepump
Tv- internetutbud
Fiber
Besiktigad
Nej
Ekonomi
Begärt pris
2 500 000 kr
Driftskostnad
Värme
19 710 kr/år
Samfällighet
16 500 kr/år
Vatten/Avlopp
5 508 kr/år
Försäkring
3 576 kr/år
Personer i hushåll
1
Driftskostnader totalt
45 294 kr/år
Pantbrev
3 st om totalt 980 000 kr
Värdeår
1988
Taxeringsår
2024
Taxeringskod
220
Taxeringsvärde byggnad(er)
996 000 kr
Taxeringsvärde tomt
992 000 kr
Taxeringsvärde totalt
1 988 000 kr
Total fastighetsskatt/-avgift
10 074 kr

Visningar

Lördag

1

november

Lördag 1/11

Kl: 11:00 - 12:00

Välkommen att anmäla dig till visningen.

Mäklare

Ulf Torsein

Fastighetsmäklare

0705-41 70 03 ulf@gofab.se

Intresseanmälan

Fyll i dina uppgifter så kontaktar vi dig.