Surdal

Tjörn - Surdal 14A - Klövedal

TJÖRN - Rart bostads-/ fritidshus med bra läge .

Renoverat båtsmanstorp med åretrunt standard för ett gott lantligt boende med närhet till fina strövområden och havet inom cykelavstånd. En liten pärla att njuta av.

Sammanfattning

Typ:
Villa
Boarea:
60 kvm
Rum:
4 varav 2 sovrum
Pris
1 995 000 kr
Byggår:
1860, 2013

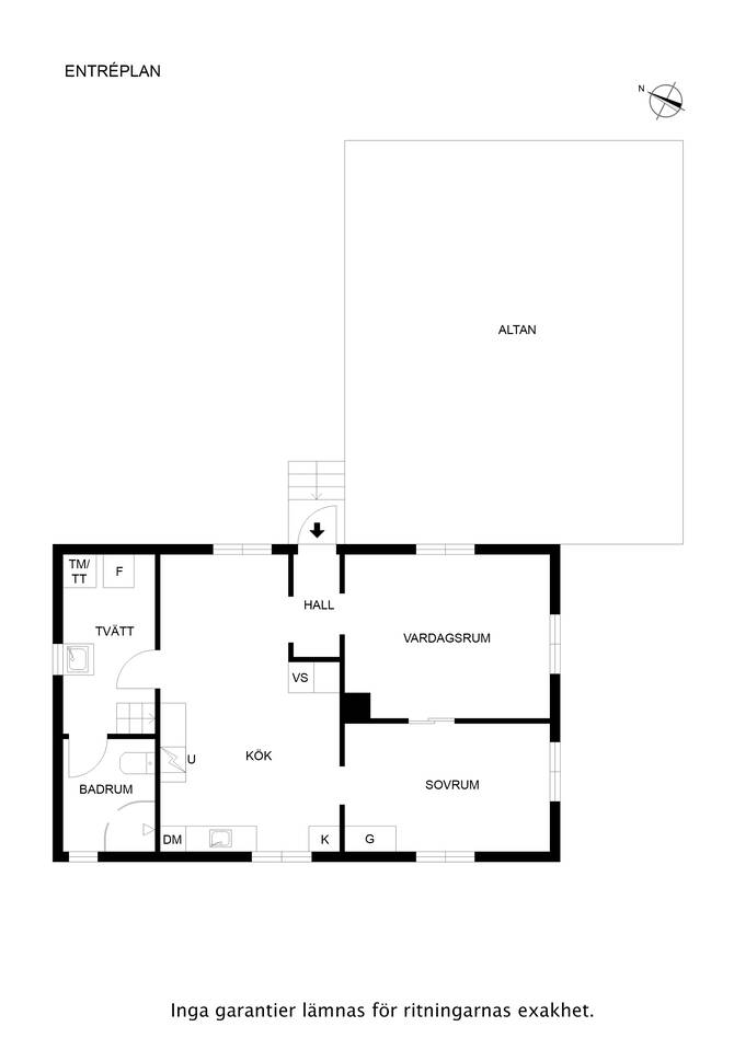
Planlösning

Välkommen in i entréhallen via en stor solig altan. Från hallen kommer du in i en storstuga med vedspis och ekparkettgolv. Innanför storstugan finns första sovrummet också med parkettgolv. Från hallen når du köket med vedspis förutom normala vitvaror, också med parkettgolv. Till höger finns en helkaklad tvättstuga med tvättpelare och ett helkaklat badrum med WC, tvättsäll och duschhörna. Boyta c:a 60 kvm. En brant trappa leder till en loftliknande övervåning med hall, förråd och sovrum. Boyta c:a 40 kvm. Vidbyggd ved-/ redskapsbod. Härlig tomt om 1001  kvm Boyta 60 kvm med fruktträd och gräsmatta för barn med spring i benen.

Fakta

Fastighetsbeteckning
BÅTSMANSTORPET 1:2
Boarea
60 Kvm enligt säljaren
Fasad
Trä
Tak
Betongpannor
Plåtarbete
Plåtisol
Stomme
Trä
Bjälklag
Trä
Grundläggning
Torpargrund
Grundmur
Natursten
Murstock
Tegel
Vatten och avlopp
Enskilt vatten året om gemensamt med ganne Enskilt avlopp.
Eldstad
Braskamin
Fönster
3-glas
Uppvärmning
Värmepump, vedspis, vedkamin
Ventilation
Självdrag
Tv- internetutbud
Fiber
Besiktigad
2024-09-19
Energiprestanda
146 kWh per kvm och år
Energiklass
E
Ekonomi
Begärt pris
1 995 000 kr
Kommentar
Fastigheten har varit uthyrd varför ägarna inte vet driftskostnaden.
Taxeringskod
220
Taxeringsvärde kommentar
Fastigheten nyligen avstyckad och saknar f.n. taxeringsvrde
Total fastighetsskatt/-avgift
8 349 kr
Kommentar
I överplan c:a 40 kvm Tomt 1001 kvm

Visningar

Kontakta mäklaren för mer information om visning.

Mäklare

Ulf Torsein

Fastighetsmäklare

0705-41 70 03 ulf@gofab.se
Inspekterat

Besiktigat

Denna bostad är besiktigad. Kontakta mäklaren för mer information.

Inspekterat

Dolda fel försäkring

Säljaren ämnar att teckna en dolda fel-försäkring genom Gar-Bo Försäkring. Försäkringen Gar-Bo Dolda fel är en objektsförsäkring. Kontakta mäklaren för mer info.

Planlösning

Intresseanmälan

Fyll i dina uppgifter så kontaktar vi dig.